Venta de Oficina en Madrid, Madrid

Madrid (Madrid)
1.250.000 €
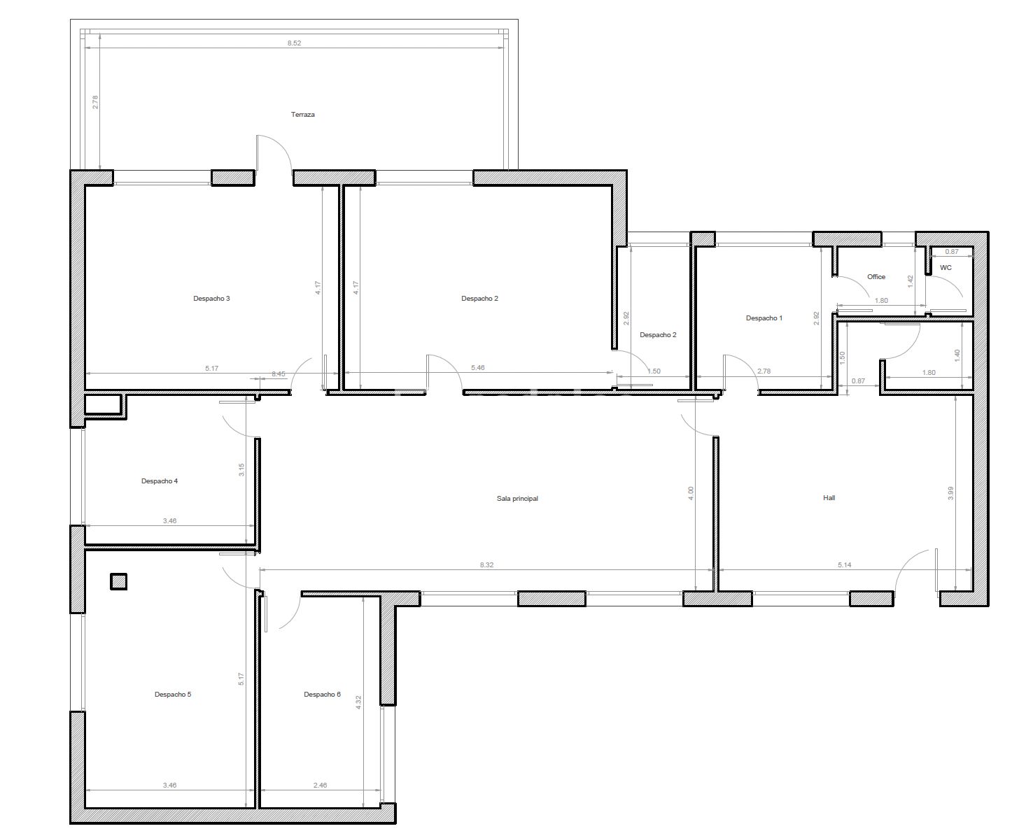
  • 230m2
  • 0
  • 2
  • A reformar

Real Estate Almagro pone a su disposición una magnífica oficina de 230 m² en una de las zonas más prestigiosas de Chamberí-Almagro.Ubicada en una primera planta interior, esta oficina destaca por su luminosidad y su gran potencial de reforma, ideal para adaptar el espacio a las necesidades de su negocio.El inmueble se distribuye en: amplio hall de entrada, 7 despachos independientes, office, 2 baños.Toda la superficie se encuentra tabicada, lo que permite múltiples opciones de redistribución y aprovechamiento del espacio.Situada en una finca representativa y rodeada de excelentes comunicaciones y servicios, en pleno corazón de Almagro, una de las zonas más demandadas para actividad profesional.Solicite más información o concertar una visita sin compromiso:📞 910 378 491📲 WhatsApp: 633 153 236

Contacta


¿Te interesa este inmueble? Rellena el formulario para obtener más información.

Características

Metros totales: 230
Estado: A reformar
Tipo de suelo: Otros
Cal. energética: E
Aire acondicionado: Frío/calor
Baños: 2
Año de construcción: 1966
Agua caliente: Central
Calefacción: Central